ΜΕΛΕΤΗ ΕΣΩΤΕΡΙΚΟΥ ΧΩΡΟΥ ONLINE
Αρχιτεκτονικός σχεδιασμός εσωτερικών χώρων με έμφαση στη λειτουργικότητα και τη χωρική οργάνωση.
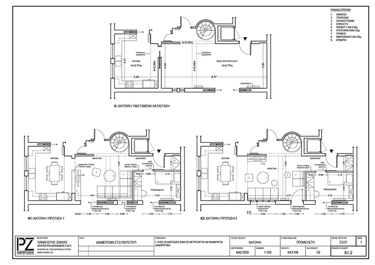
Αφορά ουσιαστικές αλλαγές στη διαρρύθμιση και όχι διακοσμητικές παρεμβάσεις.
Η υπηρεσία παρέχεται online, για έργα σε όλη την Ελλάδα και το εξωτερικό.
ΖΗΤΗΣΤΕ ΠΡΟΣΦΟΡΑ
ΤΙ ΠΡΟΣΦΕΡΩ
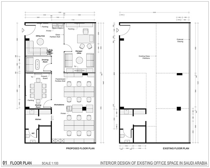
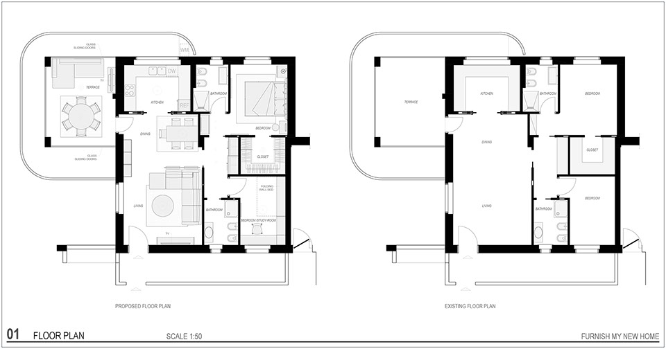
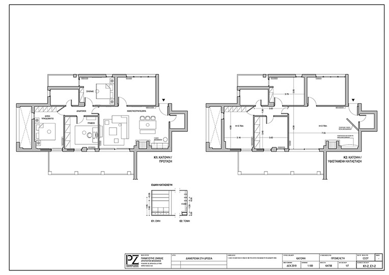
- νέα αρχιτεκτονική κάτοψη (αναδιάταξη χώρων)
- αφαιρετικό 3D μοντέλο για κατανόηση του χώρου
- mood board αισθητικής κατεύθυνσης
- ενδεικτικό προϋπολογισμό εργασιών
ΣΕ ΠΟΙΟΥΣ ΑΠΕΥΘΥΝΕΤΑΙ
- ανακαινίσεις με αλλαγές διαρρύθμισης
- διαμερίσματα που χρειάζονται νέα κάτοψη
- πελάτες που θέλουν αρχιτεκτονική λύση, όχι διακόσμηση
ΤΙ ΔΕΝ ΠΕΡΙΛΑΜΒΑΝΕΙ
- επιλογή συγκεκριμένων επίπλων (shopping list)
- αναλυτική επιλογή χρωμάτων ή υλικών
- διακοσμητικές προτάσεις
ΠΩΣ ΛΕΙΤΟΥΡΓΕΙ Η ΔΙΑΔΙΚΑΣΙΑ
- Συμπληρώνετε τη φόρμα επικοινωνίας
- Εξετάζω το αίτημά σας και λαμβάνετε προσφορά
- Με την αποδοχή, ξεκινά η μελέτη εσωτερικού χώρου
- Παραλαμβάνετε την πρόταση σε PDF
Η συνεργασία γίνεται online.
ΖΗΤΗΣΤΕ ΠΡΟΣΦΟΡΑ ΓΙΑ ΜΕΛΕΤΗ ΕΣΩΤΕΡΙΚΟΥ ΧΩΡΟΥ
Συμπληρώστε τα στοιχεία σας πατώντας στο κουμπί παρακάτω.
Θα λάβετε σύντομα μία προσφορά για μελέτη εσωτερικού χώρου.
ΦΟΡΜΑ ΕΠΙΚΟΙΝΩΝΙΑΣ
Εναλλακτικά, προγραμματίστε βιντεοκλήση:
ΒΙΝΤΕΟΚΛΗΣΗ
30λεπτη αρχική συζήτηση. Βεβαιωθείτε ότι έχετε αποστείλει τοπογραφικό, φωτογραφίες, ακριβή θέση του οικοπέδου ή όποιο άλλο αρχείο κρίνετε απαραίτητο πριν από τη συνάντησή μας στο info@pzarch.gr